ALTEMED
9 000 m² de cour
Concours Lauréat - PC en cours
Montpellier (34)
Loci Anima
BUDGET
13,3 M€

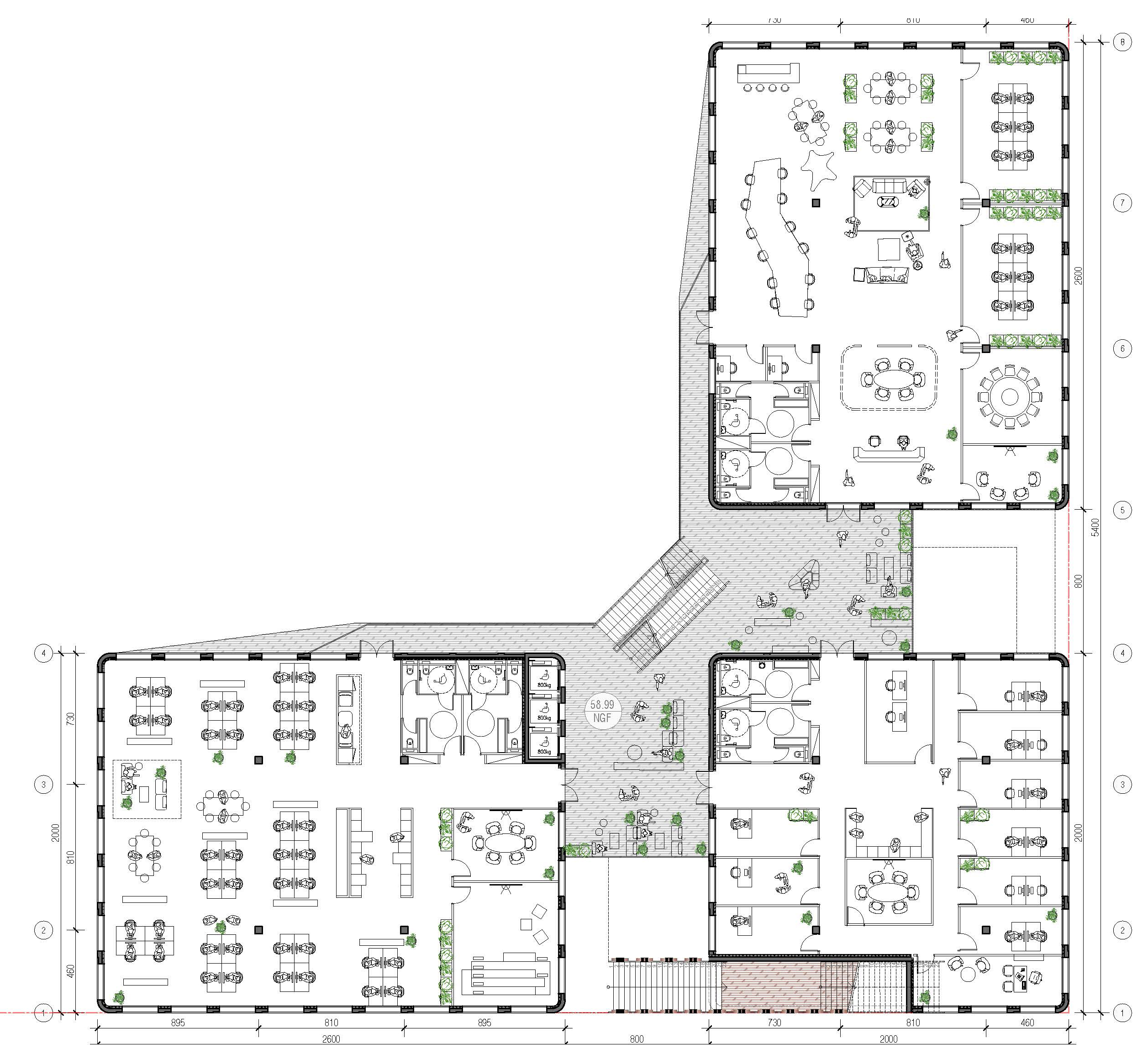
La Ronda s’inscrit dans la dynamique de requalification du quartier Mosson Sud à Montpellier, à proximité du cours de la Mosson et de la future entrée du quartier.
Ce nouveau bâtiment tertiaire à socle actif accueillera notamment les bureaux de la DDFIP, participant ainsi à la redynamisation économique du secteur.
Le projet vise à incarner le renouveau du quartier, en conciliant sobriété constructive, confort d’usage et ouverture sur le paysage.
Conçu comme un bâtiment-promenade, La Ronda déploie une circulation extérieure qui relie l’espace public à une terrasse panoramique.
Son architecture claire et structurée, ponctuée de failles végétalisées et de matériaux durables, propose une nouvelle façon de travailler, plus lumineuse et connectée au territoire.
Par sa présence et sa qualité architecturale, La Ronda marque une étape importante dans la transformation de la Mosson et affirme une vision optimiste de l'aménagement à Montpellier à la place de l'ancienne tour d'Assas.




