Privé
160 m² sdp
Livré en 2018
Rennes (34)

Il nous reste… 150 m² avec 50 % de droit à construire voiture inclue !
Dans ce secteur, les maisons présentent de nombreuses mitoyennetés avec des aérations créées par les entrées en creux, des jardinés moyennement entretenus.
Des volumes sombres sont présents par le retournement de l’ardoise en façade. La pierre orne certaines maisons, écoles et murets environnants.
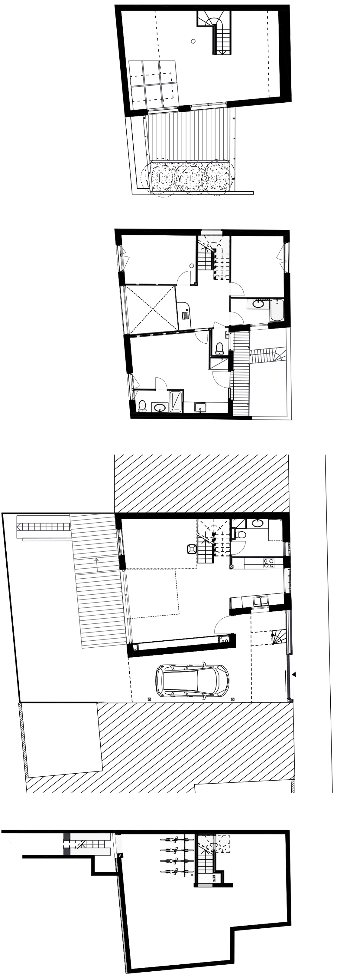
La maison existante était vétuste et mal optimisée avec un seul niveau praticable accessible par une volée d’escalier. Les futurs usagers souhaitant vivre leur retraite avec une habitation adapté et adaptable ne voulaient pas conserver.
Un contexte aussi riche que contraint !
Dans ce rectangle encaissé, comment créer une maison modulable, lumineuse et ménageant des respirations ?
La proposition fut d’extruder un volume maximal (noir) dans lequel nous avons creusé pour :
Depuis cette terrasse et la toiture, la lumière pénètre jusqu’au RDC grâce à un puit de lumière sur 3 niveaux.
L’organisation du plan permet de vivre pleinement le RDC en lien direct avec le jardin.
Lorsque la mobilité des usagers sera altérée, la mise en place de la chambre au RDC est pensée par le simple rajout d’une cloison.
Un studio indépendant permet d’accueillir des amis tout autant qu’une future aide à domicile.


